26 мая 2025 15:46
3097
4

В Тольятти закроют для проезда мост на улице Революционной

В Тольятти закроют для проезда мост на улице Революционной
Начнется капитальный ремонт моста
Фото: Администрация Тольятти

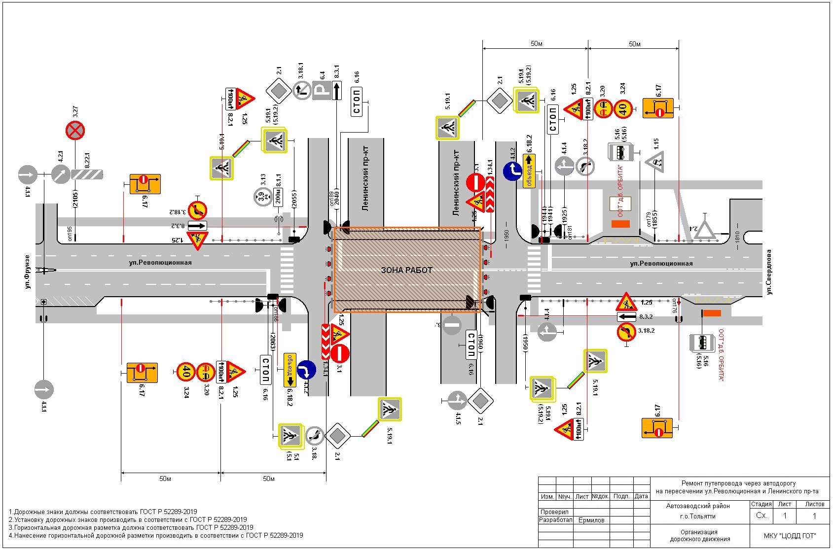
В Тольятти с начала июня перекроют движение по путепроводу на ул. Революционной. Объект, построенный в начале 70-х годов, готовится к серьезному ремонту, сообщил глава города Илья Сухих.

«Его ремонт будет проводиться впервые. Изначально мы планировали сохранить возможность проезда по путепроводу на время производства работ. Но коллеги-мостовики провели предварительное обследование сооружения и выявили дефекты, которые могут повлиять на безопасность дорожного движения в процессе ремонта. Поэтому принято решение перекрыть путепровод для всех видов транспорта. Ориентировочно — со 2 июня», — сообщил Сухих в соцсетях.

Опубликованы временные схемы объезда путепровода на ул. Революционной.

«Мы полагаем, что в летний период, когда транспорта в городе становится меньше, предстоящие ограничения не вызовут серьезных проблем для автомобилистов», — отметил градоначальник.

Ранее сообщалось, что объем работ на данном объекте рассчитан на 9 месяцев. Власти подчеркивали, что подрядчика будут подгонять, чтобы успеть провести все работы до конца года.

«При производстве работ, в том числе заменим металлическое ограждение — в новом будем использовать элементы с изображением ладьи как одного из символов нашего города», — сообщил ранее Илья Сухих.

Источник: TLT.ru

Если вы нашли ошибку, пожалуйста, выделите фрагмент текста и нажмите левый Ctrl+Enter.

  1. Давно пора было.

  2. А замочки интересно сохранят?)

  3. Так его же уже отремонтировали недавно. Питерская компания. Гранит поставили. За 12 млн.
    Информация что он не ремонтировался не верна.

  4. Сделали бы парящий мост как в Москве!

Для комментирования войдите через любую соц-сеть:

Тольятти меняется?

Просмотреть результаты

Загрузка ... Загрузка ...

Сообщить об опечатке

Текст, который будет отправлен нашим редакторам: